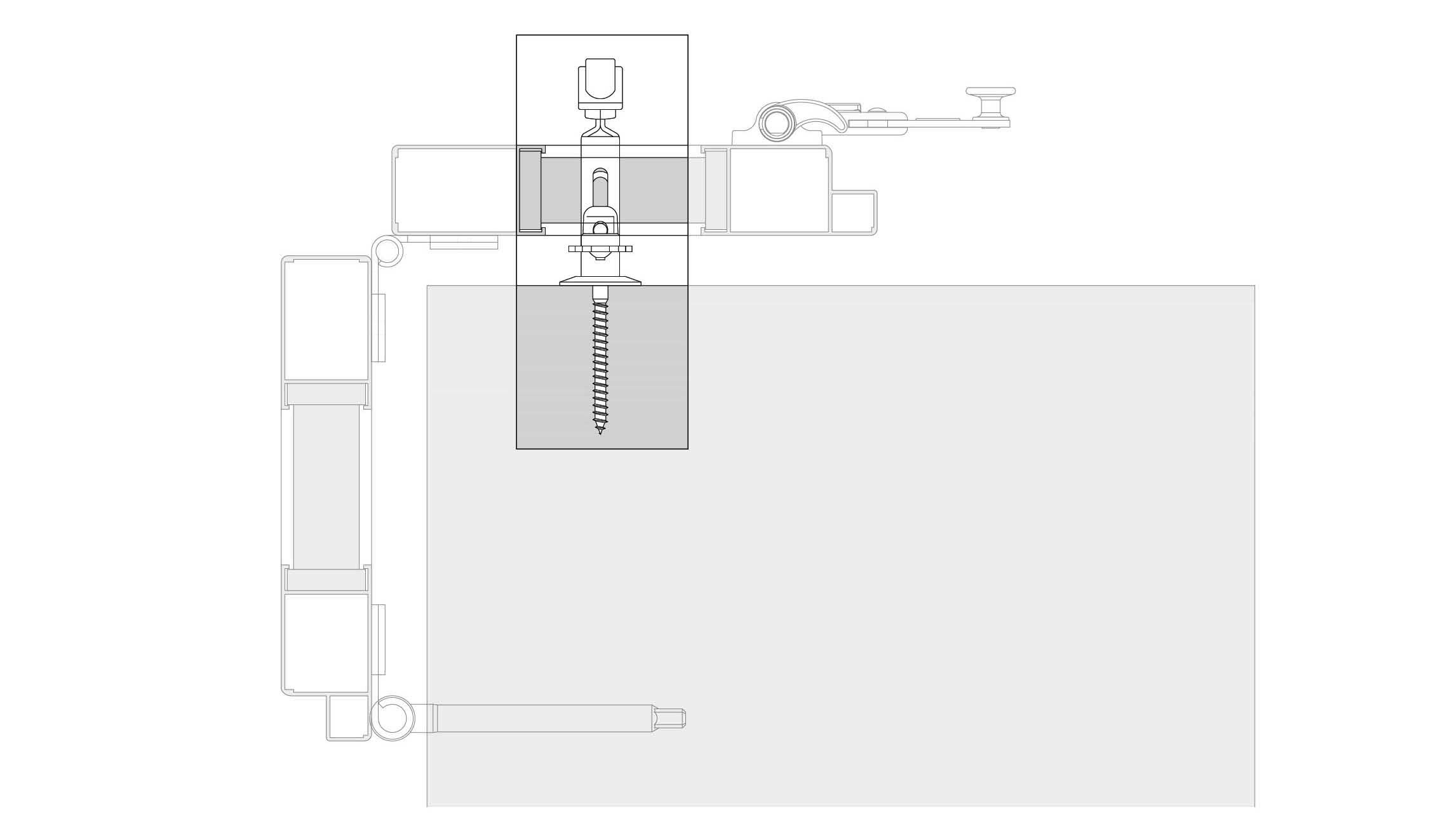
SERIE X632 Fermascuro a fissare doppia regolazione corto, doppio gommino
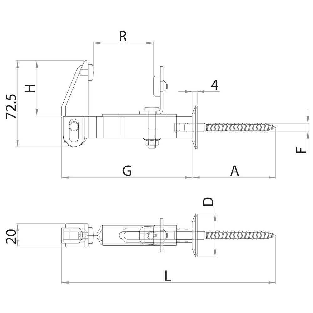
DISEGNO TECNICO
| Articolo |
Codice |
L |
FxA |
R |
G |
D |
H |
Pcks |
Listino |
B2B |
| X7-632-05 |
A0104956 024 |
160-205 |
Ø7 x 65 |
17-58 |
95-140 |
36 |
48 |
20 |
//
|
|
| X7-632-15 |
A0104957 024 |
245-290 |
Ø7 x 150 |
17-58 |
95-140 |
36 |
48 |
20 |
//
|
|
Materiale:
A richiesta:
Categoria Commerciale: I0