Skip to content
Search for:
Home
Chi siamo
Chi siamo
Ricerca e innovazione
Flessibilità e produttività
Collaborazione
Filiera italiana
Video Aziendale
Qualità
Codice Etico
Whistleblowing
Prodotti
BANDELLE
CARDINI
CHIUSURE
FERMASCURI E MANIGLIE
FERRAMENTA GENERICA
ALLUMINIO
GALILEO
INOX
HEXT
AUTOMAZIONI
Informazioni Generali
Area Riservata
Servizi
Servizi
Su Misura
Soluzioni per il restauro
Processo Rapido e Semplice
Colori e Finiture
Supporto Tecnico
Logistica
Rete Vendita
Contatti
Rete Vendita
Account
REDD Finder
Search for:
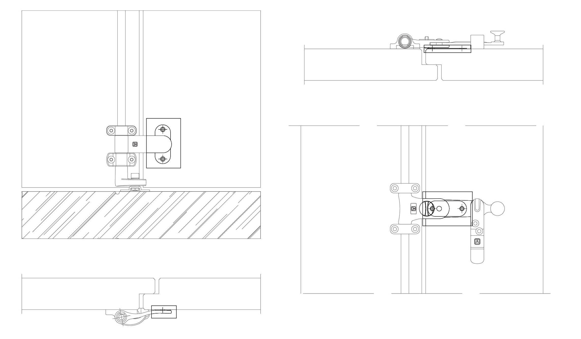
SERIE 821
Battente per pareggiatore "820" e spagnolette
DISEGNO TECNICO
Articolo
Codice
A x B
Sp
Y
Pcks
Listino
B2B
8-821-05
A9901791 502
50 x 20
0,8
38
100
//
AGGIUNGI AL CARRELLO
Scheda Tecnica
Materiale:
Finitura:
A richiesta:
Categoria Commerciale: M0
APPLICATIVO
ARTICOLI CORRELATI
SERIE 820
Pareggiatore per spagnoletta
Page load link
Go to Top