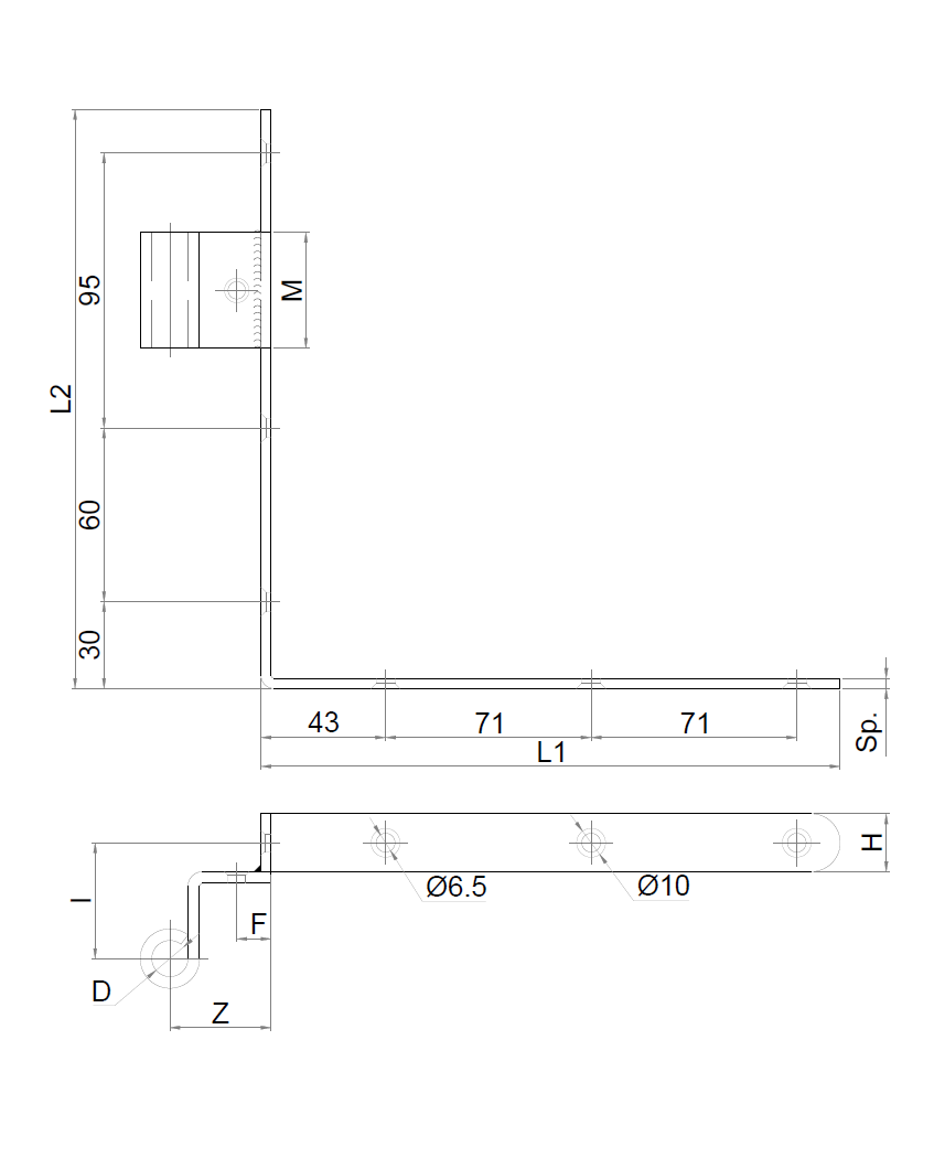
SERIE 391 - 396 Squadro a scomparsa variabile "COLLO ESTERNO"
Categoria Commerciale: F0
ARTICOLO A RICHIESTA: l'Ufficio Tecnico si riserva di verificare la fattibilità della modifica quote
Categoria Commerciale: F0
ARTICOLO A RICHIESTA: l'Ufficio Tecnico si riserva di verificare la fattibilità della modifica quote